Objektart
Adresse
Objektdaten
Informationen
Ausstattung
Details
Dieses großzügige Haus überzeugt durch seine vielseitigen Nutzungsmöglichkeiten. Die ca.242 m² Wohnfläche sowie die
zusätzlich nutzbaren 121 m² bieten ausreichend Platz für große Familien, Mehrgenerationenwohnen oderauch eine gewerbliche Nutzung.
Durch die Aufteilung kann das Gebäude in mehrere Wohneinheiten/Gewerbeeinheiten unterteilt werden, wodurch auch
eine Vermietung denkbar wäre.
Die massive Bauweise sorgt füreine hohe Wertbeständigkeit und ein angenehmes Wohnklima.
Das weitläufige Grundstück mit ca. 1.475 m² bietet viel Platz zurEntfaltung und ist ideal für Familien mit Kindern oder
Menschen, die Wert auf einen großen Garten legen.
- Großzügige Wohnfläche von ca. 242 m²
- Zusätzliche Nutzfläche von ca. 121 m², die ebenfalls zu Wohnzwecken genutzt werden
kann
- Flexible Nutzungsmöglichkeiten:
Mehrgenerationenwohnen,
Vermietung oder gewerbliche Nutzung
- 5 Badezimmer für maximalenKomfort
-Ca. 14 Zimmer mit vielfältigenNutzungsmöglichkeiten
- 5 Küchen - ideal für die Aufteilung in mehrere Wohneinheiten
-Große Terrasse mit viel Platz für entspannte Stunden im Freien
-Gartenhaus (ca.50 qm) mit mehreren Räumen: ideal als Werkstatt, Hobbyraum oder zusätzlicher Stauraum
-Großzügiges Grundstück mit viel Grünfläche
-Gewerbeerlaubnis ist erforderlich, da sich dieses großzügige Objekt in einem Gewerbegebiet befindet
Energieausweis:
Ein bis zum 22.02.2035 gültiger
Energieausweis liegt als
Bedarfsausweis vor:
Energieeffizienzklasse: D
Endenergiebedarf: 122,63
kWh/m² a
Hauptenergieträger: Gas
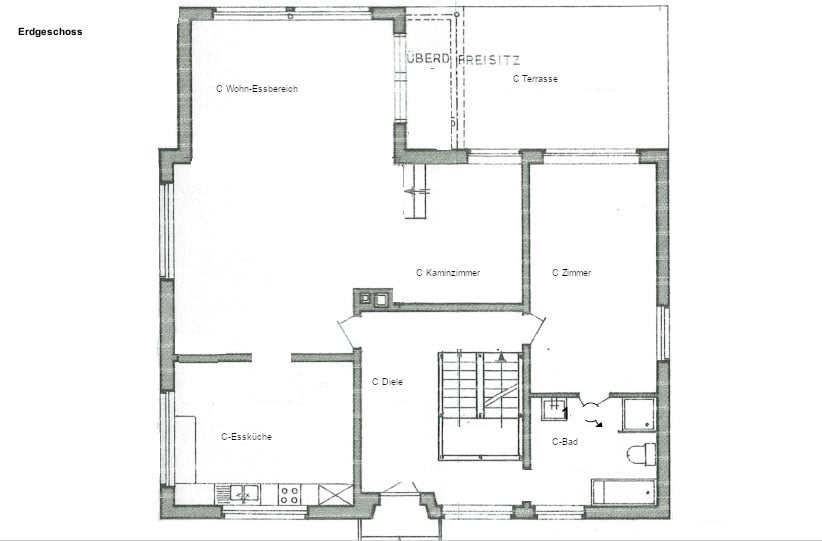
- Erdgeschoss
Diele, Schlafraum, große Küche,
Großer Wohn-Essbereich mit
Kaminzimmer, Badezimmer, Zugang
zur Terrasse und Garten
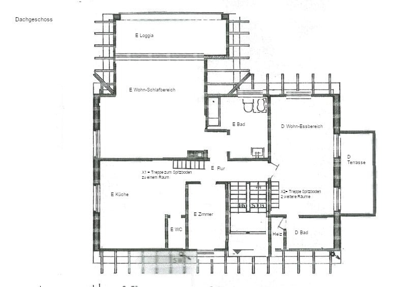
Dachgeschoss (2 mögl. Einheiten)
Einheit links
Ein Badezimmer mit Badewanne,
Küche, Separates WC, großer Wohnbereich
mit Loggia, ein Zimmer sowie
ein Raum im Spitzboden
Einheit rechts
Bad mit Dusche, Wohn-Essbereich
mit offener Küche, Balkon,
Abstellraum, zwei Räume im
Spitzboden
- Untergeschoss (Nutzfläche)
Deckenhöhe 2,60m
Vorderer Bereich:
Abstellraum, Anschlussraum, Küche,
Dusche, WC, großer Arbeits-
/Wohnbereich, 3 Räume
Kinder/Gästezimmer
Hinterer Bereich:
Dusche, WC, Küche, 3 Räume
Außenanlage:
Garten, Gartenhaus
(ca.50m³),Stellplätze auf der
Auffahrt, Terrasse
Probsteierhagen ist eine attraktive Gemeinde, die ländliche Idylle mit guter Erreichbarkeit und Nähe zur Ostsee verbindet. Sie bietet eine hohe Lebensqualität für Bewohner, geprägt von Natur, Tradition und einem aktiven Gemeindeleben.
Es besteht eine gute Verkehrsanbindung mit dem ÖPNV nach Schönberg und zur Landeshauptstadt Kiel.
Infrastruktur: Eine Grundschule sowie Kindertagesstätten sind vor Ort.
Weiterführende Schulen befinden sich in den umliegenden Städten wie Schönberg oder Kiel.
Im Ort gibt es kleinere Geschäfte des täglichen Bedarfs, Gaststätten und Handwerksbetriebe sowie mit
Duffner Immobilien einen sehr guten Makler und Baufinanzierer.
Für umfangreichere Einkäufe ist die Nähe zu Kiel von Vorteil.
Probsteierhagen bietet zahlreiche Freizeitmöglichkeiten, darunter Wandern, Radfahren und Wassersport in der nahen
Ostseeregion. Zudem gibt es eine Vielzahl an Vereinen und kulturelle Veranstaltungen, die das Gemeinschaftsleben
bereichern.
Das Expose´wurde nach bestem Wissen und Gewissen erstellt.
Sämtliche Informationen und Angaben stammen vom Auftraggeber und wurden nicht im Detail überprüft.
Insbesondere wurden von uns keine Baugenehmigungen eingesehen.
Ebenfalls hat eine detailierte Kontrolle zur Angabe der Wohn- und Nutzfläche sowie des Baujahres nicht stattgefunden. Für die Richtigkeit der Angaben übernehmen wir daher keine Gewähr.
Irrtum und Zwischenverkauf bleiben vorbehalten.
Baufinanzierung? Wir finden das passende Angebot für Sie!
Sie benötigen eine Baufinanzierung für den Kauf Ihrer Immobilie? Als unabhängiger Baufinanzierer unterstützen wir Sie gerne - kompetent, persönlich und kostenlos.
Wir vergleichen für Sie die Konditionen von über 300 deutschen Kreditinstituten und ermitteln das für Sie passende Finanzierungsangebot - individuell auf Ihre Bedürfnisse zugeschnitten.
Unsere Garantie: Innerhalb von 24 Stunden erhalten Sie ein persönliches, unverbindliches Finanzierungsangebot. Schnell, transparent und zuverlässig.
Energieausweis (Bedarfsausweis)
122,63 kWh / (m²*a) Endenergiebedarf
122,63 kWh / (m²*a) Endenergiebedarf
122,63 kWh / (m²*a) Endenergiebedarf
Weitere Informationen
| Wesentlicher Energieträger | GAS |
| Energieausweis gültig bis | 2035-02-22 |
| Energieausweis Jahrgang | ab dem 1.5.2014 |
| Energieverbrauch für Warmwasser | enthalten |
| Energieausweis Werteklasse | D |
| Energieausweis Baujahr | 1980 |
| Energieausweis Gebäudeart | Wohngebäude |
| Befeuerung | Gas |
Ich bin damit einverstanden, dass mir Karten von Google angezeigt werden. Es gelten die Datenschutzbedingungen von Google (https://policies.google.com/privacy).
Ich bin einverstanden