Objektart
Adresse
Objektdaten
Informationen
Ausstattung
Details
Das in massiver Bauweise errichtete Objekt verfügt über 3 vermietete Wohneinheiten.
Eine kleine Dachgeschoßwohneinheit mit 2 Zimmer (ca. 31 m²),
eine Wohneinheit im ersten Stockwerk mit Balkon und 3 Zimmern ( ca. 65 m²) , sowie
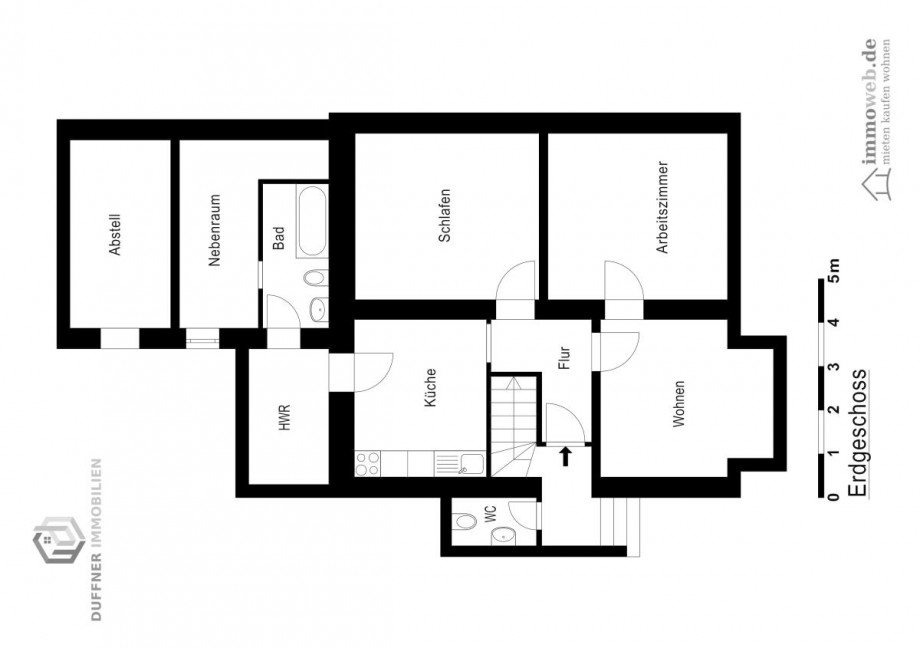
eine Wohnung im Erdgeschoss mit ebenfalls 3 Zimmern ( ca. 78 m²) und Terrasse.
Das Gebäude ist komplett unterkellert. Das Haus wird mit einer modernen Gasheizung von 2006 beheizt. Das Dach wurde isoliert.
Auf dem großen Grundstück sind weitere Nebengebäude und eine große Garage vorhanden, die ebenfalls genutzt werden können.
Das Objekt ist derzeit vermietet. Die Jahresnettokaltmiete beläuft sich auf ca 12.000 ? p.a..
Es besteht kein Renovierungsstau.
Besonderes Highlight ist das große Grundstück von 1.086 m².
Bitte haben Sie Verständnis, dass wir aus Diskretionsgründen keine Innenaufnahmen zeigen.
Ein bis 12.02.2028 gültiger verbrauchsorientierter Energieausweis liegt mit folgenden Werten vor:
Energieausweis liegt als Verbrauchsausweis vor, Klasse E, 156,90 kWh/m²a, Hauptenergieträger Gas, Gas Zentralheizung
- 3 Wohneinheiten
- 8 Zimmer
- 3 Bäder mit WC
- 1 separates WC
- Gas Heizung von 2006
- Grundstück 1.086 m²
- Garage
- Vollkeller
- Das Objekt ist zur Zeit voll vermietet.
Nettokaltmiete z.Zt.p.a.12.000 ?
Das Objekt liegt in Neumünster in dem schönen Stadtteil Gartenstadt.
Neumünster wird auch als Herz Schleswig-Holsteins bezeichnet. Eine sehr gute Verkehrsanbindung ist vorhanden.
Kiel liegt etwa 27 Kilometer nördlich von Neumünster, während es in südlicher Richtung etwa 68 Kilometer bis Hamburg sind. Die Stadt Neumünster ist kreisfrei und grenzt im Uhrzeigersinn an die Kreise Plön, Segeberg und Rendsburg-Eckernförde.
Schule, Kindergärten, Ärzte, Krankenhäuser,diverse Einkaufsmöglichkeiten, etc. sind sehr schnell zu erreichen.
Bitte beachten Sie das wir nur Anfragen mit kompletten Kontaktdaten bearbeiten können.
Bitte sehen Sie von telefonischen Anfragen ab.
Wir bearbeiten alle Anfragen nach Eingang.
Energieausweis liegt als Verbrauchsausweis vor, Klasse E, 156,90 kWh/m²a, Hauptenergieträger Gas, Gas Zentralheizung. Gültig bis 12.02.2028
Ansprechpartner
Telefax: 0431 / 53400987
Mobil: 0162-7535964
f.duffner@immoweb.de
Ich bin damit einverstanden, dass mir Karten von Google angezeigt werden. Es gelten die Datenschutzbedingungen von Google (https://policies.google.com/privacy).
Ich bin einverstanden